
垂水区戸建、確認申請提出
いつもお世話になっております。

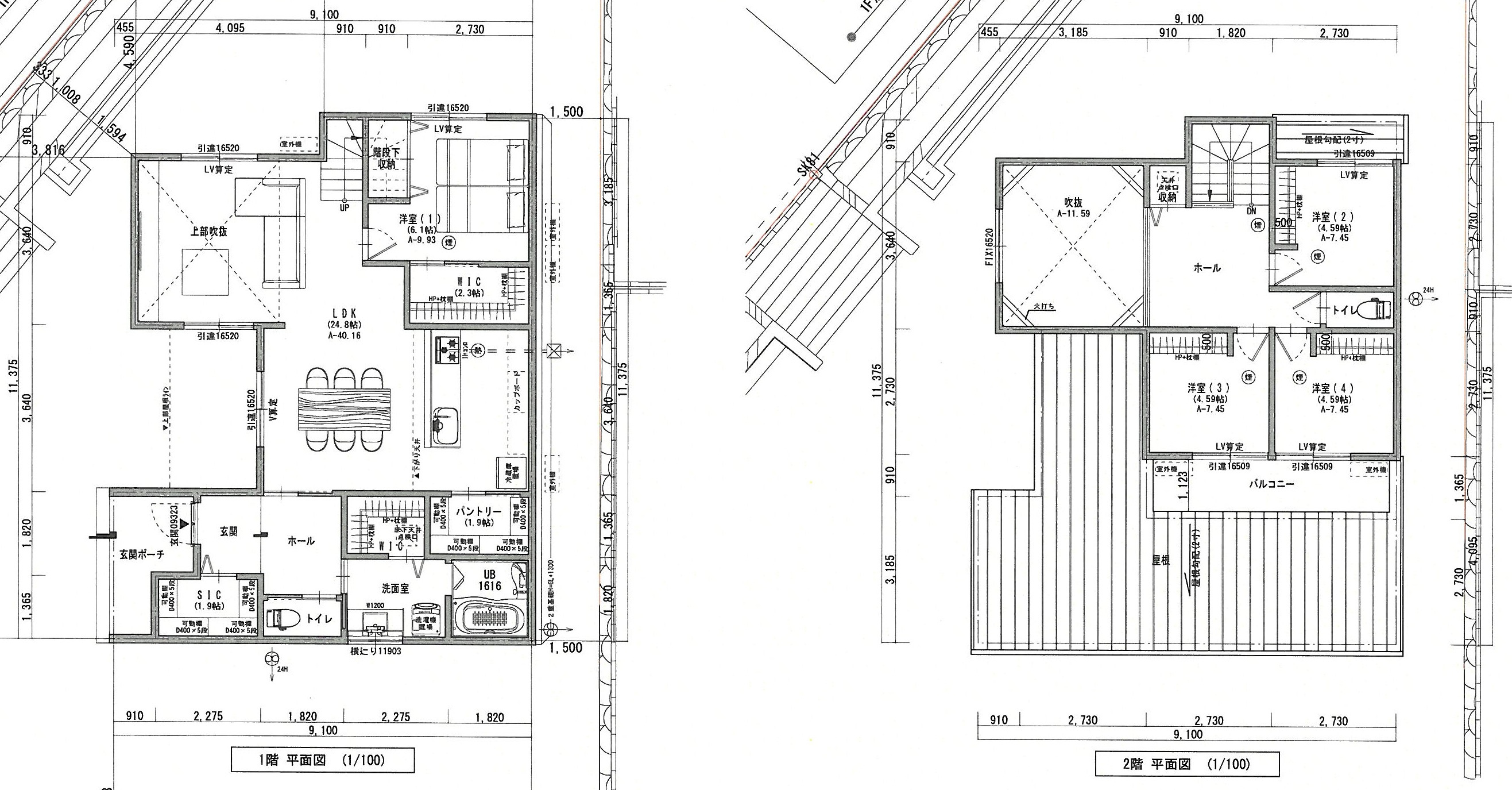
垂水区新築戸建のプランがようやく固まりまして、建築確認申請を提出させて頂きました。
審査に通るまで少し時間がかかりますので、着工は来年の春頃になるでしょうか?

LDKと玄関ホールを広めにしたい!収納スペースもたっぷりと!というお施主様の希望を
組み込んだプランになっております。
進捗がありましたら、また報告させていただきます。
それではまた~。
